Highlights
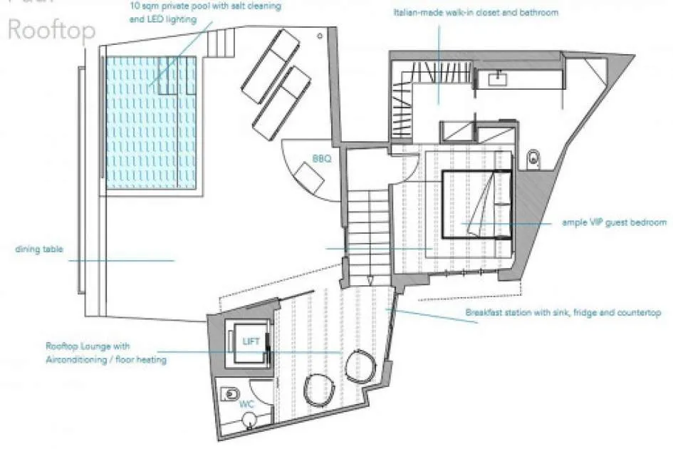
- Swimming pool
The real estate marketplace for Mallorca, Menorca and Ibiza.




















Remember
1 / 3
Remember
2 / 3
Remember
3 / 3